Gå direkte til innhold
Sjemmedalhytta

Sjemmedalhytta
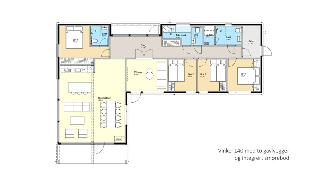
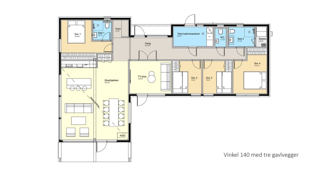
vinkel 140

Soverom: 4
Bad: 2 (+ekstra WC)
BYA: 172 m2
BRA: 140 m2

Sjemmedalhytta 140 er en romslig og innholdsrik hytte som imøtekommer de fleste behovene til en storfamilie.

Med fire gode soverom, to stuer, to bad og et ekstra toalettrom har denne hyttemodellen rikelig med plass. I tillegg har den store TV-stuen plass til en dobbel sovesofa for gjester når det er behov for ekstra overnattingsplass.

Hyttemodellen har også en fleksibel planløsning som kan tilpasses etter ønske. Et alternativ er å omdisponere noe av arealet til å inkludere en integrert smørebod inne i hytta. Dette gir muligheten til å ha et dedikert område for vedlikehold av sportsutstyr, og samtidig bevare den romslige og funksjonelle karakteren til hytten.

Vinkelhytta er en modell med mye plass og arkitekturen skaper ekstra lune uterom. Her kan storfamilien boltre seg på ett plan. Hytta har lavere mønehøyde enn våre andre modeller. Den diskre framtoningen gjør at hytta plasserer seg vakkert inn i terrenget. Med 5 meter mønehøyde, vil modellen passe innunder de fleste reguleringsbestemmelser.

De gamle seterbyggene hadde ofte lange og smale bygningskropper. Vinkelhyttene er bygget etter samme visjon der to rette bygningskropper er satt sammen til en vinkel. Hyttemodellen leveres med mønehøyde på 5 meter. Vi tilpasser takvinkler og mønehøyde etter tomtens reguleringsbestemmelser.

Hytta er planlagt for å være en sosial møteplass. Planløsningen har god harmoni mellom antall soveplasser, sitteplasser rundt spisebordet og salongen. Det er god plass til alle rundt bordet og hytta har rolige soner å trekke seg tilbake til.

Arkitekturen og materialbruken skaper åpne, men likevel lune rom der naturen og roen spiller hovedrollen. Hyttas lyse og romslige stue er hjerte i din drømmehytte. Her har du god plass til både lange middager og sofakos ved peisen etter en dag ute i naturen.

Våre hytter leveres med håndlagde og stilrene kjøkken som er vakkert integrert i hytta. Kjøkkenet er perfekt for å nyte utsikten og en deilig kopp kaffe før skituren. Som en naturlig forlengelse av stua, tilfører kjøkkenet en sosial og varm atmosfære til hytta. Kokken kan forberede middagen i praktiske omgivelser, og samtidig ta del i påskequizen eller samtalene rundt sofabordet.

Ytterkledningen leveres som standard med stående, overflatebehandlet grankledning. På alle modellene fra Sjemmedalhytta har vi en vedlikeholdsfri kledning som tilvalg. På taket kan du velge mellom tretak eller skikkelig fjellgress, slik gammel skikk tilsier.

Tunbygg

Vi leverer også tilhørende tunbygg. Enten du ønsker en bod til lagring av ski, ved og sykler, eller en isolert smørebod hvor du kan ha det temperert når du jobber. Hytta er mange ganger en samlingsplass for storfamilien.

Da kan det være fristende å ha et eget anneks med stue, soverom og eget bad å trekke seg tilbake til. Garasje er praktisk til mange formål. Den gir rom til lagring og snøfri parkering på vinteren. Alle våre tunbygg kan leveres uisolert, isolerte og kledd innvendig.

Tilpasninger og kundeønsker

Sjemmedalhytta er fleksible om du ønsker å gjøre om på planløsningen. Kanskje du ikke ønsker badstue, men at et badekar er en drøm? Noen ønsker å få ett rom større på bekostning av et annet rom. Snakk med oss om dine ønsker, vi gjør tilpasninger til din drømmehytte.

Hva kan du bygge på din tomt?

Det er mange faktorer som kan legge føringer for hvordan du kan bygge på din tomt. Vi i Sjemmedalhytta ser aller først på bestemmelser for mønehøyde og areal. Hvor høyt kan du bygge, og hvor stort. Begrepene på areal som ofte brukes er BYA (bebygd areal) og BRA (bruksareal).

Utover dette er det klokt å få fagfolk til å se nærmere på tomten i forhold til bestemmelsene. Vi tar en grundig vurdering av tomten og reguleringsbestemmelsen når vi får en bestilling på å bygge hytte for deg.

Takutstikk eller ikke? – Tretak eller torvtak.

Alle våre hyttemodeller kan leveres med tretak eller torvtak. Du kan også velge om du ønsker takustikk eller ikke på langsidene av hytta.  

Bildet viser en Sjemmedalhytta 106 uten takutstikk på langsidene og med tretak. Hytta møter deg med sitt minimalistiske, ærlige og gjennomtenkte uttrykk, og en form skapt for å passe inn i den norske fjellheimen. Modellen har tydelig inspirasjon fra de gamle stølene i møte moderne tanker om arkitektur. Mangelen på takutstikk på langveggene gir hyttemodellen et langstrakt og elegant uttrykk. 

Illustrasjon av Sjemmedalhytta 106 med tretak og uten takutstikk.
Illustrasjon av Sjemmedalhytta 106 med torvtak og takutstikk.

«Med effektive håndverkere ble hytta til vår store tilfredshet overlevert tre uker før tiden og vi kunne feire påske i ny hytte med senkede skuldre.»

Mari-Anne Frantzen og Johnny Gjerstad

Se andre hyttemodeller

Sjemmedalhytta H 150

Vår største H-hytte – for deg som søker romslighet, ro og kvalitet i hver detalj.

Sjemmedalhytta H 123

En fleksibel hytte med rom for ro, nærhet og naturopplevelser

Sjemmedalhytta
vinkel 150

Modellen har store gode rom, og en ekstra stor stue og hyggelig kjøkkensone. Fire store soverom, to stuer, to bad og et ekstra toalettrom gir en romslig følelse og plass hele storfamilien.

Sjemmedalhytta
vinkel 123

Hyttemodellen kommer i to varianter, med tre soverom eller fire soverom. Den romslige TV-stua har god plass til en dobbel sovesofa til ekstra gjester de gangene det blir behov for dette.

Sjemmedalhytta 147

Modellen har fire soverom, to bad og en hems med god takhøyde som er velegnet som TV-stue. Sjemmedalhytta 147 rommer alt det en storfamilie trenger.

Sjemmedalhytta 123

Hytta har fire soverom, to bad og en hems. Hemsen har god takhøyde, og, mange velger å bruke hemsen som TV-stue. Hyttemodellen er tilpasset for at hele storfamilien skal kose seg på hytta.

Sjemmedalhytta 116

Hyttemodellen har fire soverom, ett bad og en hems med god takhøyde. Hemsen velger mange å bruke som TV-stue. Hyttemodellen dekker de fleste behov for en aktiv familie.

Sjemmedalhytta 106

Stue-kjøkkensonen er like romslig som på de større modellene. Hytta har fire soverom, ett bad og en hems med god takhøyde som mange velger å bruke som TV-stue. Denne innholdsrike hytta dekker behovet til veldig mange familier.

Sjemmedalhytta 70

En mindre og svært arealeffektiv hytte. Stue og kjøkken har full takhøyde som gir god og luftig romfølelse. Modellen leveres med de samme gode kvaliteter som våre større hytter. Hytta er perfekt for hyttekontor alene eller om du lader batteriene med venner og familie.

Sjemmedalhytta Garasje

Mange ønsker seg garasje på hytta. Sjemmedalhytta har praktiske garasjer i tre størrelser med samme arkitektur som våre hytter.

Sjemmedalhytta
Anneks 40

Trenger du å ha mer plass på hytta, eller et eget sted å trekke deg tilbake til når barnebarna skal legges? Da er et eget anneks løsningen.

Sjemmedalhytta Uthus 30

Kanskje har du ønske om et eget hobbyrom på hytta og behov for ekstra lagerplass? Da er dette det ekstra drømmehuset du trenger.

Sjemmedalhytta
Smørebod 13

Romslig og praktisk bod til oppbevaring og vedlikehold av sportsutstyr. Smøreboden leveres uisolert til lagring, eller isolert og innredet til hobbyrom, preparering av ski og plass til et ekstra kjøleskap.

Vi vil gjerne vite mer om deg!
Send oss litt om dine ønsker, så tar vi kontakt.

Meld interesse