Gå direkte til innhold
Sjemmedalhytta

Storevatn Hemsedal – Arkitekttegnet kvalitetshytte

Sjemmedalhytta vinkel 123.

Prosjektert arkitekttegnet kvalitetshytte på Storevatn i Hemsedal.

Naturskjønne omgivelser

Tomten ligger naturskjønt og solrikt til i flotte omgivelser ved Storevatn og Skogshorn ved Lykkja i Hemsedal kommune. Området ligger ca. 845 meter over havet og har utsikt til blant annet Skogshorn, Storevatn, Totten og Lykkja.

Området rundt hyttefeltet består av et flott natur- og kulturlandskap, preget av mektige snaufjell, setervidder, skog og fjellvann. Nærområdet består av eldre stølsområder og nyere hyttegrender.

Tomten ligger sørvendt i hyttefeltet, ned mot Storevatn og har sol hele året. Lysforholdene på fjellet endrer seg mye med årstidene og gir spill i de flotte omgivelsene. Her kan man oppleve magiske øyeblikk som sommerhimmel til gnistrende snø.

Området tilbyr varierte aktivitetsmuligheter året rundt og man får utnyttet de ulike årstidene til det fulle.

Det er lett å få øye på Skogshorn, en frittliggende fjelltopp (1728 moh) som ligger vest for tomtefeltet, med en rekke av Hemsedalsfjella mot sørvest. Skogshorn er et av Hemsedals mest kjente og besøkte fjelltopper, både til fots og på ski.

Sjemmedalhytta vinkel 123 er flott hytte med alt på en flate.
Sjemmedalhytta vinkel 123.
Illustrasjon av hytte og smørebod

Tomt 9 har adresse
1636 m²
840 moh

BRA 123
BYA 150
Byggeår 2024

GNR: 63
BNR: 109

Fra Kiwi på Ulsåk, følg Lykkjavegen mot Lykkja i ca. 15 km. Ta til høyre når du ser skiltet til Storevatn Hyttefelt.

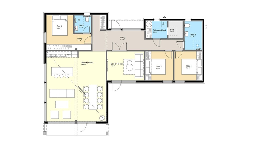
Denne Sjemmedalhytta får en god planløsning og inneholder stue med åpent kjøkken, ekstra tv-stue, 4 soverom (inkl TV-stua som er et kompirom), 2 bad, teknisk/vaskerom og gang med garderobe. Hytta har alt på ett plan og et BRA på 123m2 og et BYA på 150m².

Se Finn annonsen

Planskisse Sjemmedalhytta vinkel 123

Ekte kjærlighet for design og håndverk  

Sjemmedalhytta designer og bygger moderne hytter som trekker paralleller til gamle setere i Hallingdal. Hyttene har smarte og varige løsninger, og detaljer som gir deg en høy verdi. Sjemmedalhytta er bygd på tillit og med ekte kjærlighet for design, arkitektur og håndverk – levert til avtalt tid og pris.

Åpen kjøkkenløsning som gir deg god kontakt med gjestene mens du lager mat

Vår historie, arkitektur og håndverk. 

Med inspirasjon fra gamle støler som hadde ligget i fjellet i 150 år, ble Sjemmedalhytta til. Sjemmedalhytta har blitt vår tolkning av Hallingdals gamle støler. Altså en moderne hytte med solide tradisjonelle forankringer – en arkitektur der historien og fremtiden møtes.

En hytte skal fylles med gode opplevelser. Da gir det en ekstra trygghet å velge en lokal leverandør med over tretti års oppsamlet kunnskap og erfaring. Vi er stolte av håndtverket vi leverer, og legger sjelen vår i å gjøre veien fra første samtale til nøkkelferdig hytte ryddig og forutsigbar for deg.

Med Sjemmedalhytta er det lett å forstå en leveranse. Vi leverer komplette løsninger slik at du kan flytte rett inn. Alt er inkludert, og leveransen har gjennomgående gode kvaliteter.

Ta kontakt for et møte med oss i en visningshytte. Det vil skape en felles oppfattelse av hva produktet og oppgaven inneholder. Noe som resulterer i at byggeprosessen blir forutsigbar, trygg og trivelig. Det skal være gøy å bygge hytte.

Ingen skjulte eller kamuflerte kostnader. Her er tomt, graving, betong og hytte med alle kvaliteter inkludert i prisen. Slik vi ønsker å levere den.

Ta kontakt for mer informasjon

Vi vil gjerne vite mer om deg!
Send oss litt om dine ønsker, så tar vi kontakt.

Meld interesse