Gå direkte til innhold
Sjemmedalhytta

Høgsetra Turufjell – Ski inn/ut

Fasade Høgsetra.
Solgt

Ny Sjemmedalhytte med høy standard – SOLGT!
Under 2t. fra Oslo. Turufjellvegen 572, 3539 Flå

Ny Sjemmedalhytte på attraktive Turufjell, først i Hallingdal

Hytta ligger innerst i blindvei på Høgsetra, solrikt på en utsiktstomt grensende mot friareal og langrennsløype med tilknytning til Eventyrløypa. Det er ski in/out til alpint og man har en fantastisk utsikt oppover Hallingdalsfjella. Hytta har en stor og lun uteplass, beliggende usjenert mot friområd.

Høgsetra er av de nyeste og mest attraktive områdene på Turufjell og ligger inn mot fjellet like ved Olasetran og Olaseterbekken.

Hytta er utført i meget god kvalitet fra Sjemmedalhytta og med «alle fasiliteter», meget god romløsning og høy standard.

Sjemmedalhytta er en solid hyttebygger i Hallingdal med mer enn 30 års oppsamlet fagkunnskap og som setter sin ære i å levere solid norsk håndverk, hver gang! Sjemmedalhytta er ingen masseprodusent, men en håndverksbedrift som har hentet inspirasjon fra Hallingdals gamle støler og seterbygninger. Resultatet er blitt moderne hytter med solide tradisjonelle røtter og gode kvaliteter.

Se Finn-annonsen.

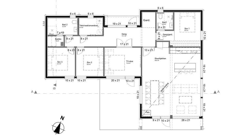
Fritidsbolig på ett plan. Hytta har en meget praktisk romløsning med plass til hele familien og i tillegg gjester. Godt med oppbevaringsplass og flotte uteområder. Utomhusområdet er opparbeidet med stedlige masser.
Hytta inneholder følgende rominndeling:
Gang, stue, kjøkken, 4 soverom, 2 bad, badstu, vaskerom/bod.

Høgsetra plantegning

Turufjell tilbyr kortreiste opplevelser og et allsidig, vakkert og familievennlig natureldorado hele året.

Her er en oversikt over noen aktivitetene Turufjell inviterer til.

Randonee og frikjøring

Tenk å slippe å kjøre 4 timer i bil for å gå topptur! Rundt Turufjell kan du klikke på deg skia eller split boardet på hytta og rusle opp til f.eks Kristnatten og Turufjellet som strekker seg mot 1100 moh. På toppen kan du nyte den fantastiske utsikten før du suser rett hjem igjen til hytteveggen. Sørbølfjellet ligger også like i nærheten og ruver nesten 1300 moh.

Langrenn

Turufjell gir deg alt fra småkuperte rundløyper i hytteområdet til Eventyrløypa som tar deg helt til Hemsedal om du vil. Her kan du altså velge og vrake ut i fra dagsformen. Det er også kort vei til høyfjellet og vidda innover Veslefjell og Sørbøfjell, der finner du dagsparkering og det står gapahuker lang løypene for velfortjente pauser.

Gapahuk for velfortjente pauser
Trikkeskinner i Eventyrløypa
Nydelig preparerte skiløyper
Toppen av Turufjell

Alpint

I dag er det totalt 7 nedfarter og 2 heiser, men Turufjell skisenter og Kafé får et større alpinanlegg med alpinbakker for alle nivåer. På sikt vil alpinbakkene knytte seg til to forskjellige fjelltopper og samlet blir det over 15 km nedfarter fordelt på ca. 10 traseer,  egen bakke for frikjøring og skogkjøring mellom traseene.

Fiske

Så vakkert det er rundt Turufjell på sommeren med flotte fiskevann, både store elver og mindre fjellvann. Det vil også bli tilrettelagt for fiske ved hytteområdene.

Bjørneparken

Bjørneparken er en kjent og kjær familiepark med bjørner, elg, gaupe samt kjente husdyr man kan oppleve på nært hold, men visste du at de har Norges største krokodilleutstilling med 30 krokodiller, slanger og andre eksotiske dyr? I tillegg finnes det hinderløyper, berg- og dalbane, lekeland, samt flere gode spisesteder.

Sykling

Flå sine sykkelstier, pumptrack og flytstier er under enorm utvikling. I tillegg til at Eventyrveien, sykkelstien fra Geilo til Noresund går forbi her, bygges det også stier på Turufjell og Høgevarde. Du kan like gjerne melde seg på Pumptrack series til neste år allerede nå!

Shopping og restauranter

10 km fra Turufjell, en kort biltur ned fra fjellet, ligger Flå sentrum og Bjørneparken kjøpesenter som har søndagsåpent. Her finner du det du skulle trenge av matvarer, sportsutstyr, interiør, Vinmonopolet, parkeringsplass med elbil-ladere og mye mer. I sentrum finnes også svømmehall, flerbrukshall og bibliotek.

Vi vil gjerne vite mer om deg!
Send oss litt om dine ønsker, så tar vi kontakt.

Meld interesse