Gå direkte til innhold
Sjemmedalhytta

Høgevarde – Prosjektert arkitekttegnet hytte på solrik utsiktstomt i blindvei

Prosjektert arkitekttegnet kvalitetshytte på Høgevarde – Flå.

Velkommen til Høgevarde, et høyfjellsparadis kun 1 time 45min fra Oslo sentrum. Her tilbys et bredt spekter av muligheter for enhver smak, sommer som vinter.

På vinterstid kan du gå milevis på ski i preparerte skiløyper. Fra tomten kan du enkelt skli rett inn i løypenettet.
Løypenettet varierer fra lette familieturer til lange dagsetapper. Du kan også ta en tur i alpinbakken for litt mer fart og spenning.
Høgevarde er også et yndet sted for randonee-ski, med topper som Høgevard (1459 m.o.h.) og Gråfjell (1466 m.o.h.) med Sør-Norges flotteste utsikt på godværsdager.

Når snøen på Høgevarde har smeltet kommer vakre turstier, sykkelstier, fiske- og badevann til syne. På Høgevarde finner du noen av områdes beste sykkelstier for både familier og de som ønsker mer utfordringer.

Ved Fyrisjøen er den en hyggelig badestrand tilrettelagt for piknik og grilling. Der ligger det kanoer og robåter til fri benyttelse. Dette er et veldig populært område om sommeren.

 

Flå ligger først i Hallingdal. Flå har et nyere sentrum som stadig er under utvikling med blant annet: kjøpesenter med 16 butikker og 2 spisesteder, bensinstasjoner, Bjørneparken, Rovdyrsenter, det nasjonale jakt- og fiskesenteret, Thon hotell, bank, legesenter, tannlege m.m.
Flå kommune kan også tilby aktiviteter som flerbrukshall med treningssenter, squash-hall, tuftepark og ungdomsklubb, svømmehall, bygdekino, skytebane, motocrossbane, kanoutleie, paintball, bibliotek og Flå stadion med ny kunstgressbane m.m.

Utsikt fra tomten
Utsikt fra tomten
Utsikt fra tomten i solnedgang
Utsikt fra tomten i solnedgang
Utsikt fra tomten i solnedgang
Utsikt fra tomten i solnedgang
Sykling. En av mange aktivitetsmuligheter på Høgevarde.
Mange flotte sykkelstier i område.

Tomt 212 har adresse: Eitjernhaugen 36, 3539 Flå  
1366 m²
920 moh

BRA 140
BYA 172
Byggeår 2025

GNR: 29
BNR: 156

Fra øst kjører du riksvei 7 nordover forbi Sokna og Hallingporttunellen i Gulsvik, ta av til venstre mot Høgevarde. Sving til høyre mot Høgevarde etter ca. 800 meter, og kjør deretter ca. 10 km til infotavla, hvor du lett kan orientere deg til ulike hytteområder og aktiviteter.

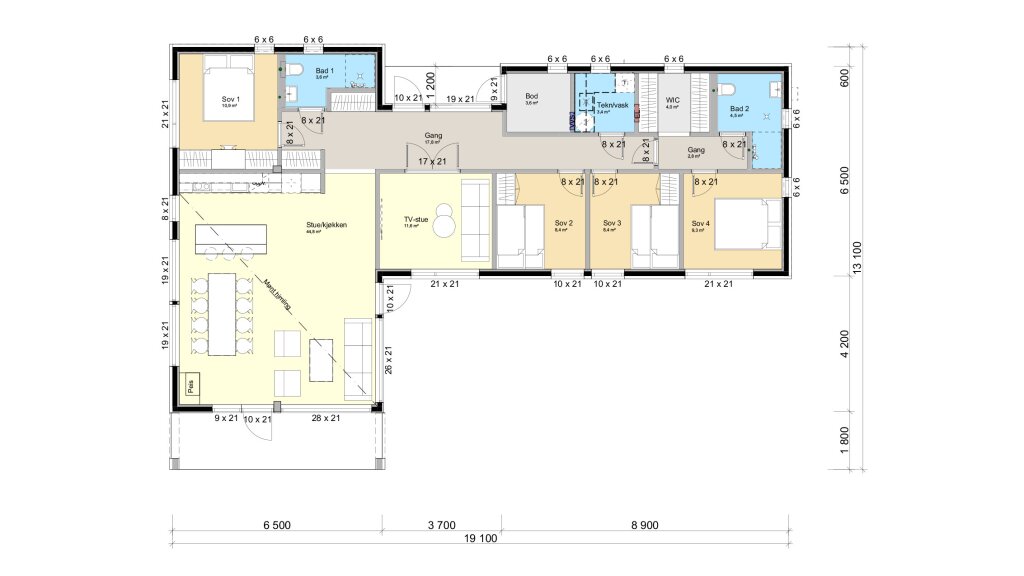
Denne «Sjemmedalhytta vinkel 140» får en god planløsning og inneholder stue med åpent kjøkken, ekstra tv-stue, 4 soverom, 2 bad, teknisk/vaskerom og gang med garderobe. Hytta har alt på ett plan og et BRA på 140m2 og et BYA på 172m2.

For mer informasjon og pris se Finn annonsen

Planskisse Sjemmedalhytta vinkel 140
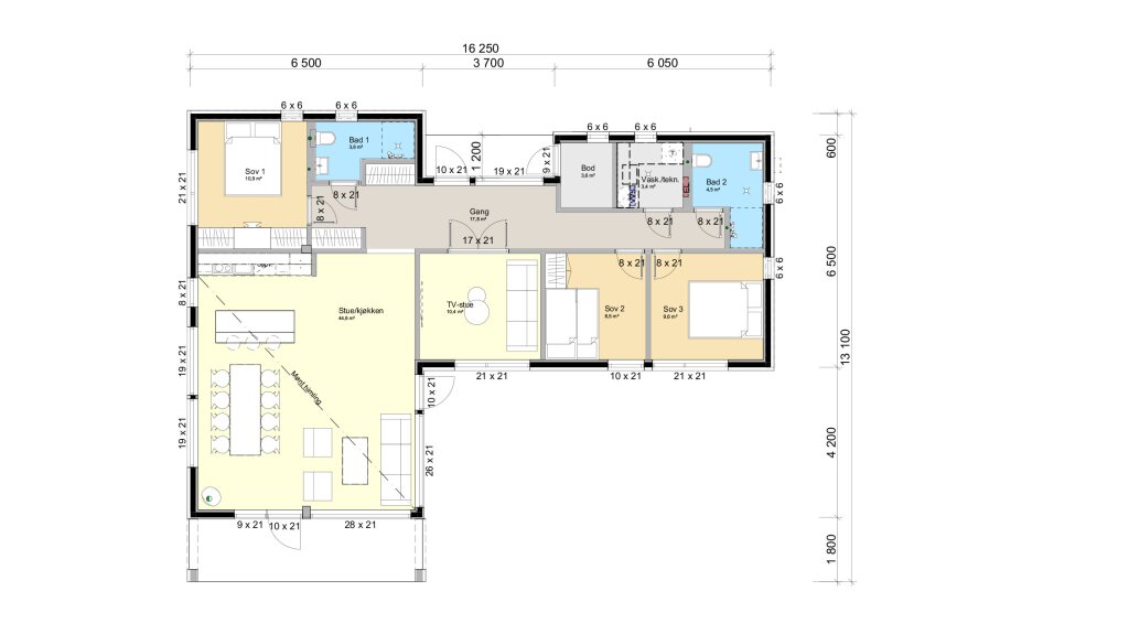
Alternativ: Planskisse Sjemmedalhytta vinkel 150
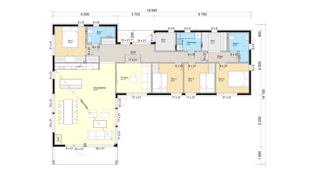
Alternativ: Planskisse Sjemmedalhytta vinkel 123

Ekte kjærlighet for design og håndverk  

Sjemmedalhytta designer og bygger moderne hytter som trekker paralleller til gamle setere i Hallingdal. Hyttene har smarte og varige løsninger, og detaljer som gir deg en høy verdi. Sjemmedalhytta er bygd på tillit og med ekte kjærlighet for design, arkitektur og håndverk – levert til avtalt tid og pris.

Vår historie, arkitektur og håndverk. 

Med inspirasjon fra gamle støler som hadde ligget i fjellet i 150 år, ble Sjemmedalhytta til. Sjemmedalhytta har blitt vår tolkning av Hallingdals gamle støler. Altså en moderne hytte med solide tradisjonelle forankringer – en arkitektur der historien og fremtiden møtes.  

En hytte skal fylles med gode opplevelser. Da gir det en ekstra trygghet å velge en lokal leverandør med over tretti års oppsamlet kunnskap og erfaring. Vi er stolte av håndtverket vi leverer, og legger sjelen vår i å gjøre veien fra første samtale til nøkkelferdig hytte ryddig og forutsigbar for deg. 

Med Sjemmedalhytta er det lett å forstå en leveranse. Vi leverer komplette løsninger slik at du kan flytte rett inn. Alt er inkludert, og leveransen har gjennomgående gode kvaliteter.  

Ta kontakt for et møte med oss i en visningshytte. Det vil skape en felles oppfattelse av hva produktet og oppgaven inneholder. Noe som resulterer i at byggeprosessen blir forutsigbar, trygg og trivelig. Det skal være gøy å bygge hytte.  

Ingen skjulte eller kamuflerte kostnader. Her er tomt, graving, betong og hytte med alle kvaliteter inkludert i prisen. Slik vi ønsker å levere den. 

Ta kontakt for mer informasjon

Vi vil gjerne vite mer om deg!
Send oss litt om dine ønsker, så tar vi kontakt.

Meld interesse