Gå direkte til innhold
Sjemmedalhytta

Budalsetra på Geilo

Illustrasjon av hytte på Budalsetra.

Velkommen til Budalsetra på Geilo

Her bygger vi, lekre og praktiske hytter. Hyttene er utstyrt med vannbåren gulvvarme i alle rom, inklusive bergvarmepumpe og borehull. Varmepumpa varmer også forbruksvannet, og totalt medfører anlegget en energibesparelse opp mot 80%, og et svært lavt strømforbruk.

Solrikt beliggende med panoramautsikt mot bl.a. Geilo og Havsdalen. Her er du midt i et ypperlig ski- og turterreng – oppkjørte langrennsløyper går få meter fra hytteveggen. Det er også kort vei til nærmeste alpinanlegg og ca 4 km til Geilo sentrum.

Sjemmedalhytta designer og bygger moderne hytter som trekker paralleller til gamle setrer i Hallingdal. Hyttene har smarte og varige løsninger, og detaljer som gir deg en høy verdi. Sjemmedalhytta er bygd på tillit og med ekte kjærlighet for design, arkitektur og håndverk – levert til avtalt tid og pris.

"Sjemmedalhytta vinkel" er en plasseringsvennlig hytte og som gir ekstra lune uterom. Her har vi prosjektert hytter i forskjellige størrelser. Både ferdige, under bygging og planlagte. Tomtene er prosjektert med litt forskjellige tunbygg som Garasjer, smøreboder, annekser. Ta kontakt for å diskutere hvilke ønsker som er mulig å realisere utover det som er prosjektert.

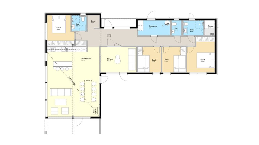
Hyttene får en god planløsning og inneholder stue med åpent kjøkken, ekstra tv-stue, 4 soverom, 2 bad hvorav ett med badstue, separat wc-rom, teknisk/vaskerom og gang med garderobe. I tillegg til hyttene settes det opp en frittliggende smørebod på hver tomt.

Sjemmedalhytta Vinkel 140
Sjemmedalhytta Vinkel 150
Sjemmedalhytta Garasje
Sjemmedalhytta Anneks 40
Sjemmedalhytta Smørebod 13

Her bygges energieffektive hytter med flott beliggenhet.

Vi har en ferdig hytte med garasje i Budalsvegen 106, 3580 Geilo Se Finn annonsen.

Her er en "Sjemmedalhytta vinkel 140" med isolert garasje. Denne er ferdig og du kan flytte rett inn.

Solrikt beliggende med panoramautsikt mot bl.a. Geilo og Havsdalen. Her er du midt i et ypperlig ski- og turterreng oppkjørte langrennsløyper går få meter fra hytteveggen. Det er også kort vei til nærmeste alpinanlegg og ca 5 km til Geilo sentrum.

Sjemmedalhytta er utviklet med inspirasjon fra Hallingdals gamle støler og seterbygg.

Hytta får en romslig og god planløsning. I tillegg settes det opp en frittliggende garasje med smørebod.

Hytta bygges med energieffektive tiltak som gir svart lavt strømforbruk.

Hytta er utstyrt med vannbåren gulvvarme i alle rom, inklusive bergvarmepumpe og borehull. Varmepumpa varmer også forbruksvannet, og totalt medfører anlegget en energibesparelse opp mot 80%.

Hytta vil få en meget god standard.

Se understående illustrasjonsbilder fra tilsvarende hytte med samme standard.

Sjemmedalhytta Garasje 30
Sjemmedalhytta Anneks 40
Sjemmedalhytta Smørebod 13

Dette er tomtene

  • Budalsvegen 70: GBNR 58/36. Prosjektert hytte. Se Finn annonsen

  • Budalsvegen 74: GBNR 58/35. Prosjektert hytte. Se Finn annonsen

  • Budalsvegen 76: GBNR 58/34. Påbegynt hytte. Graving og støpt plate er utført.

  • Budalsvegen 78: GBNR 58/33. SOLGT!

  • Budalsvegen 94: GBNR 58/31. SOLGT!

  • Budalsvegen 92: GBNR 58/32. SOLGT!

  • Budalsvegen 106: GBNR 58/45 og 61/339. Ferdig. Se finn annonsen

  • Budalsvegen 108: GBNR 58/30. Påbegynt hytte. Gravearbeider utført.

Ta kontakt for mer informasjon

Vi vil gjerne vite mer om deg!
Send oss litt om dine ønsker, så tar vi kontakt.

Meld interesse